Casa de montanha
Refúgio de final de semana para a mãe com seus dois filhos casados, noras e netos, localizado em um condomínio com grandes lotes, cercado por uma reserva ecológica, tinha como intenção criar uma casa integrada à natureza, que funcionasse como um grande “deck de contemplação e convivência”, utilizando materiais naturais, com intenção de aconchego em uma proposta contemporânea. Toda a parte íntima e de lazer se desenvolveu em um único nível, voltado para as montanhas, com um pátio gramado para o qual se abria as varandas dos quartos , das salas, piscina, deck, ducha, espelho d´água e uma cascata.

Os desafios do projeto foram, trabalhar de maneira harmônica as multiplicidades de gosto dos três núcleos (mãe e dois filhos) além de conseguir possibilitar a existência de tantos matérias numa linguagem única, alinhavando elementos naturais e rústicos, junto com outros contemporâneos. Outro desafio foi a compatibilização dos projetos de estrutura metalica na parte das salas varandas e quartos, com a madeira de demolição e o sistema estrutural convencional. Buscando garantir peças esbeltas e que venceriam grandes vãos optou-se pela estrutura metálica no volume das salas e cozinha. Esta foi toda revestida em madeira de demolição, o que gerou muitas conversa de como fazer os arremates e varias pranchas de detalhes.

O objetivo das escolhas dos materiais era aliar beleza ,aconchego com facilidade de manutenção, além do contraste dos naturais e tecnológicos, como madeira de demolição, pedra , barro, bambu, fibra, ladrilho , tecnocimento, estrutura metálica,aço inox,vidros laminados,duplos e espelhados, pastilhas de vidro, alumínio anodizado, venezianas de madeira,etc. A escolha adequada da posição da casa, seus panos de vidro, venezianas de madeira e circulação cruzada de ventilação tornaram o ambiente extremamente confortável. Portas de madeira maciças e a utilização de madeira em piso, paredes e teto , favorece a absorção de ruídos aumentando o conforto acústico.

As coberturas em balanço das varandas feitas em estrutura metálica, bambu e policarbonato tinha a intenção de trazer o sombreamento e criar um clima de vilas. A escolha do mobiliário tinha intenção de não se ater a modismos, buscando retratar a multiplicidade com as histórias pessoais de cada um, suas referências e valores com as possibilidades do mercado. O mobiliário passeia entre peças antigas, anos 50, designers brasileiros, os clássicos, os rústicos e os contemporâneos todos com fluidez e leveza para se ver através : a paisagem.

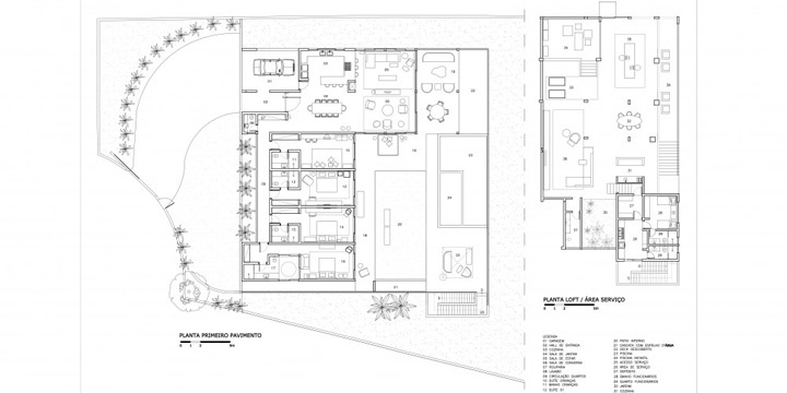
Perspectiva da planta
Ficha técnica:
- Endereço: Condomínio Arvoredo Nova Lima Brasil
- Tipo de projeto: Residencial
- Status: Construído
- Materialidade: Madeira e Vidro
- Estrutura: Madeira e Pedra
- Implantação no terreno: Isolado
fonte: archdaily